 
                        Description
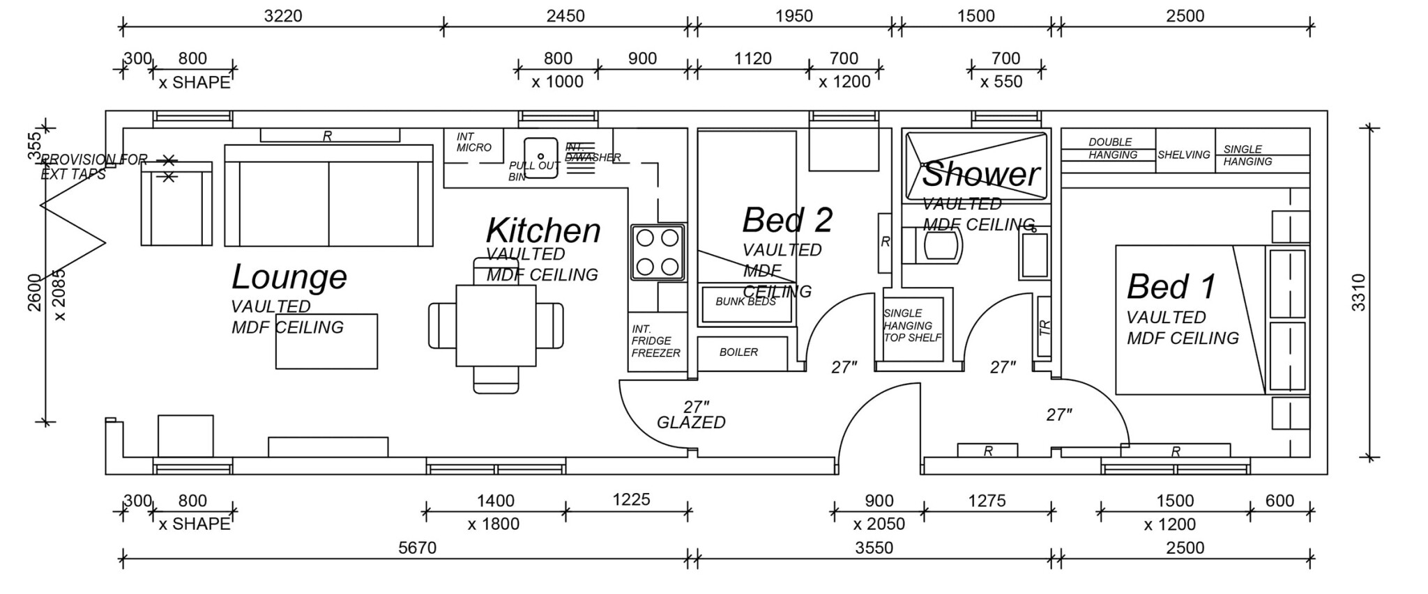
The Oakdale Lodge proves that compact living can still feel spacious and comfortable. Designed with two bedrooms, it balances practicality with luxury, creating a retreat that works well as a holiday getaway.
Vaulted ceilings and large windows bring in plenty of natural light, giving the interior an airy, open feel. The living area is arranged for both comfort and connection, featuring a welcoming lounge with an integrated fireplace and a stylish dining space that flows seamlessly into the kitchen.
The kitchen itself combines sleek high-gloss cabinetry with premium finishes, while being carefully laid out for efficiency. The master bedroom includes its own en-suite, and the second bedroom offers plenty of space and storage. A modern family bathroom completes the layout with style and convenience.
Blending smart design with homely touches, the Oakdale Lodge is a well-rounded choice for anyone who values comfort and thoughtful detail in a more compact footprint.
 
                                             
                                                             
                                                             
                                                             
                                                            